DEFINIÇÃO MÉTODO EXECUTIVO CRITÉRIOS DE CONTROLE MEDIÇÃO E PAGAMENTO
01. DEFINIÇÃO
Compreende a execução de filtros anaeróbios ou sumidouros como dispositivos auxiliares das Fossas Sépticas (Especificação ES-01.09.04), com a
função de complementar o tratamento de seus efluentes.
Terminologia
Filtros Anaeróbios
São estações de tratamento primário de esgotos sanitários, geralmente com forma prismática, seção quadrada ou retangular, com fundo falso em concreto armado, cheios de pedra britada graduada, nos quais os efluentes procedentes das fossas sépticas são distribuídos de maneira a sofrerem maior oxidação e, consequentemente, maior ação
bacteriana. Os efluentes dos filtros são, geralmente, conduzidos a um curso d’água. Isto torna obrigatória a inspeção periódica da qualidade desses efluentes e a manutenção dos filtros, através da troca do material filtrante (brita graduada).
Sumidouros
São poços de forma prismática ou cilíndrica, destinados a receber os efluentes das fossas sépticas e a permitir a sua infiltração subterrânea. Considerando-se uma altura útil de 1,80m a área do fundo do filtro será obtida pela expressão :
A (m2) = Vu / 1,8
02. MÉTODO EXECUTIVO
Filtros Anaeróbios Dimensionamento dos Filtros Anaeróbios
O volume útil dos Filtros Anaeróbios pode
ser obtido pela expressão :
Vu = 1,6 x N x C x T, onde
N = número de contribuintes
C = contribuição de despejos em
litros/pessoa dia (Tabela 01)
T = período de detenção em dias
(Tabela 02)
Tabela 02. Período de Retenção
PERÍODO DE RETENÇÃO “T”
Os Filtros Anaeróbios têm o seguinte projeto básico :
Figura 01. Filtro Anaeróbio padrão CEHOP para 50 casas – Vista Superior
Figura 02. Filtro Anaeróbio padrão CEHOP para 50 casas – Planta
CORTE AA
Figura 03. Filtro Anaeróbio padrão CEHOP para 50 casas – Corte AA

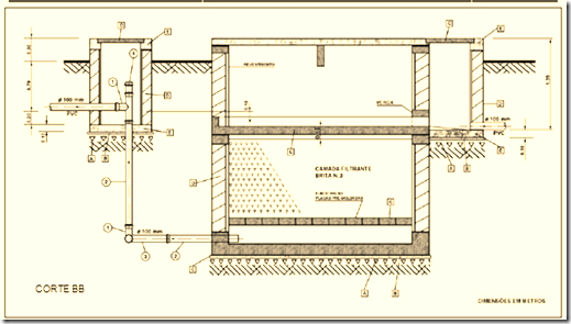
Figura 04. Filtro Anaeróbio padrão CEHOP para 50 casas – Corte BB
terreno.
Observações importantes :
As placas de suporte do leito filtrante, deverão prever furação em toda sua área. Os furos deverão ter o diâmetro ‘D’ aproximadamente igual a 3,0 cm e o espaçamento entre seus eixos será igual a ‘3 x D’. Deverão ser convenientemente dimensionadas,
sendo suas ferragens suficientemente protegidas contra a corrosão, face ao meio agressivo onde serão alojadas.
Preferencialmente, serão pré-moldadas e deverão possuir dimensões e peso que possibilitem sua remoção com facilidade. Sumidouros Dimensionamento dos Sumidouros
A área de infiltração pode ser obtida pela expressão :
A = V / Ci , onde
V = volume de contribuição diário
em l/dia = N x C , onde
Estabelecimento do Coeficiente de Infiltração do Terreno ( Ci )
Para determinação do Coeficiente de Infiltração do Terreno (Ci) deverão ser adotados os seguintes
procedimentos:
" Deverão ser escolhidos seis pontos nas proximidades do local onde será disposto o
efluente da fossa séptica. " Será aberta uma valacujo fundo deverá coincidir com o plano útil de absorção. " Serão abertos buracos de seção quadrada de 30 cm de lado e 30 cm de profundidade; o fundo e os lados do buraco serão escarificados, de modo
a tornar as superfícies ásperas; o material solto do fundo será retirado e o espaço preenchido com 5,0 cm de brita 01 limpa;
" Em seguida, os buracos serão mantido cheio com água, adicionando-se mais água, à medida que ela for se infiltrando no terreno. O processo será repetido até que o abaixamento do nível se torne o mais lento possível;
" Os buracos serão novamente cheios com água;
" Quando a água estiver a meia profundidade, será medido, em cada buraco, com um relógio e uma escala graduada, o tempo gasto, em minutos, para um abaixamento de 1cm. Este tempo é, por definição, o tempo de infiltração ou de percolação.
" De posse do tempo, será determinado o Coeficiente de Infiltração através da expressão
ou do gráfico a seguir :
Ci = (490) / (t + 2,5)
Figura 05. Gráfico para cálculo do coeficiente de percolação
" Para sumidouros, deverá ser adotado, para efeito de cálculo, o menor Coeficiente de
Infiltração.
` O Coeficiente de Infiltração varia de acordo com o tipo de solo, tendo seus valores, normalmente, dentro das faixas abaixo :
Detalhes construtivos dos Sumidouros
Os Sumidouros têm o seguinte projeto básico :
Alvenaria de amarração – utilizada quando o comprimento da parede externa for superior a 2,00m
Figura 06. Sumidouro – Planta Baixa CORTE BB
Figura 07. Sumidouro – Corte BB
Figura 09. Sumidouro – Tampa
Considerações Gerais
" No estabelecimento das dimensões do sumidouro, a cota de fundo deverá ser
mantida o mais afastada possível do lençol freático.
" Sempre que possível, o sumidouro deverá ser projetado em duas unidades, para
permitir o uso alternado.
" Quando o volume de contribuição crescer acima de 4.000 litros, é recomendável
dividir o sumidouro em dois, tendo o cuidado de afastá-los entre sí, de uma
distância maior que 3 vezes a sua maior dimensão, e nunca menor que 6 metros.
" Sumidouros Cilíndricos Não deverão ter menos de 1,20 m de diâmetro e mais de 3,00 m de profundidade,parasimplificar sua construção.
É recomendável que o diâmetro interno dos sumidouros com paredes executadas em
blocos de concreto não seja inferior a 1,50 m, para facilitar o assentamento.
" TubulaçãoA tubulação que liga a fossa séptica ao sumidouro deverá ter um caimento de 2%,no mínimo, ou seja, 2 cm por metro de tubulação. A tubulação deverá ter, no mínimo, 10 cm de diâmetro, podendo ser de PVC ou cerâmica. Deverá ser assentada numa
valeta com fundo bem compactado e nivelado. À medida que os tubos forem
assentados, a valeta poderá ser reaterrada.
03. CRITÉRIOS DE CONTROLE
Deverão ser observados as seguintes condições com relação à implantação dos sumidouros:
" A distância mínima permitida entre o sumidouro e qualquer manancial ou fonte
de captação de água será de 30,0 m." Sua localização deverá ter fácil acesso.
" Não poderão comprometer a estabilidade de edificações adjacentes.
" Quando cilíndricos, deverão ter, no mínimo, 1,20 m de diâmetro e 2,00 m de
profundidade.
" O fundo deverá ficar, no mínimo, 1,50 m acima do lençol freático.
04.CRITÉRIOS DE PAGAMENTO MEDIÇÃO
A medição será feita por unidade (un), pronta, com tampa, reaterrada e interligada à fossa.
O pagamento será efetuado por preço unitário contratual e conforme medição aprovada pela Fiscalização.
ABNT NBR 7229
Fonte: Fundação Nacional de Saúde
DESCRIÇÃO
Projeto construção e operação de sistemas de tanques sépticos Manual de Saneamento
01. DEFINIÇÃO
Compreende a execução de filtros anaeróbios ou sumidouros como dispositivos auxiliares das Fossas Sépticas (Especificação ES-01.09.04), com a
função de complementar o tratamento de seus efluentes.
Terminologia
Filtros Anaeróbios
São estações de tratamento primário de esgotos sanitários, geralmente com forma prismática, seção quadrada ou retangular, com fundo falso em concreto armado, cheios de pedra britada graduada, nos quais os efluentes procedentes das fossas sépticas são distribuídos de maneira a sofrerem maior oxidação e, consequentemente, maior ação
bacteriana. Os efluentes dos filtros são, geralmente, conduzidos a um curso d’água. Isto torna obrigatória a inspeção periódica da qualidade desses efluentes e a manutenção dos filtros, através da troca do material filtrante (brita graduada).
Sumidouros
São poços de forma prismática ou cilíndrica, destinados a receber os efluentes das fossas sépticas e a permitir a sua infiltração subterrânea. Considerando-se uma altura útil de 1,80m a área do fundo do filtro será obtida pela expressão :
A (m2) = Vu / 1,8
02. MÉTODO EXECUTIVO
Filtros Anaeróbios Dimensionamento dos Filtros Anaeróbios
O volume útil dos Filtros Anaeróbios pode
ser obtido pela expressão :
Vu = 1,6 x N x C x T, onde
N = número de contribuintes
C = contribuição de despejos em
litros/pessoa dia (Tabela 01)
T = período de detenção em dias
(Tabela 02)
Tabela 02. Período de Retenção
PERÍODO DE RETENÇÃO “T”
Figura 01. Filtro Anaeróbio padrão CEHOP para 50 casas – Vista Superior
Figura 02. Filtro Anaeróbio padrão CEHOP para 50 casas – Planta
CORTE AA
Figura 03. Filtro Anaeróbio padrão CEHOP para 50 casas – Corte AA
terreno.
Observações importantes :
As placas de suporte do leito filtrante, deverão prever furação em toda sua área. Os furos deverão ter o diâmetro ‘D’ aproximadamente igual a 3,0 cm e o espaçamento entre seus eixos será igual a ‘3 x D’. Deverão ser convenientemente dimensionadas,
sendo suas ferragens suficientemente protegidas contra a corrosão, face ao meio agressivo onde serão alojadas.
Preferencialmente, serão pré-moldadas e deverão possuir dimensões e peso que possibilitem sua remoção com facilidade. Sumidouros Dimensionamento dos Sumidouros
A área de infiltração pode ser obtida pela expressão :
A = V / Ci , onde
V = volume de contribuição diário
em l/dia = N x C , onde
Estabelecimento do Coeficiente de Infiltração do Terreno ( Ci )
Para determinação do Coeficiente de Infiltração do Terreno (Ci) deverão ser adotados os seguintes
procedimentos:
" Deverão ser escolhidos seis pontos nas proximidades do local onde será disposto o
efluente da fossa séptica. " Será aberta uma valacujo fundo deverá coincidir com o plano útil de absorção. " Serão abertos buracos de seção quadrada de 30 cm de lado e 30 cm de profundidade; o fundo e os lados do buraco serão escarificados, de modo
a tornar as superfícies ásperas; o material solto do fundo será retirado e o espaço preenchido com 5,0 cm de brita 01 limpa;
" Em seguida, os buracos serão mantido cheio com água, adicionando-se mais água, à medida que ela for se infiltrando no terreno. O processo será repetido até que o abaixamento do nível se torne o mais lento possível;
" Os buracos serão novamente cheios com água;
" Quando a água estiver a meia profundidade, será medido, em cada buraco, com um relógio e uma escala graduada, o tempo gasto, em minutos, para um abaixamento de 1cm. Este tempo é, por definição, o tempo de infiltração ou de percolação.
" De posse do tempo, será determinado o Coeficiente de Infiltração através da expressão
ou do gráfico a seguir :
Ci = (490) / (t + 2,5)
Figura 05. Gráfico para cálculo do coeficiente de percolação
" Para sumidouros, deverá ser adotado, para efeito de cálculo, o menor Coeficiente de
Infiltração.
` O Coeficiente de Infiltração varia de acordo com o tipo de solo, tendo seus valores, normalmente, dentro das faixas abaixo :
Detalhes construtivos dos Sumidouros
Os Sumidouros têm o seguinte projeto básico :
Alvenaria de amarração – utilizada quando o comprimento da parede externa for superior a 2,00m
Figura 06. Sumidouro – Planta Baixa CORTE BB
Figura 07. Sumidouro – Corte BB
Figura 09. Sumidouro – Tampa
Considerações Gerais
" No estabelecimento das dimensões do sumidouro, a cota de fundo deverá ser
mantida o mais afastada possível do lençol freático.
" Sempre que possível, o sumidouro deverá ser projetado em duas unidades, para
permitir o uso alternado.
" Quando o volume de contribuição crescer acima de 4.000 litros, é recomendável
dividir o sumidouro em dois, tendo o cuidado de afastá-los entre sí, de uma
distância maior que 3 vezes a sua maior dimensão, e nunca menor que 6 metros.
" Sumidouros Cilíndricos Não deverão ter menos de 1,20 m de diâmetro e mais de 3,00 m de profundidade,parasimplificar sua construção.
É recomendável que o diâmetro interno dos sumidouros com paredes executadas em
blocos de concreto não seja inferior a 1,50 m, para facilitar o assentamento.
" TubulaçãoA tubulação que liga a fossa séptica ao sumidouro deverá ter um caimento de 2%,no mínimo, ou seja, 2 cm por metro de tubulação. A tubulação deverá ter, no mínimo, 10 cm de diâmetro, podendo ser de PVC ou cerâmica. Deverá ser assentada numa
valeta com fundo bem compactado e nivelado. À medida que os tubos forem
assentados, a valeta poderá ser reaterrada.
03. CRITÉRIOS DE CONTROLE
Deverão ser observados as seguintes condições com relação à implantação dos sumidouros:
" A distância mínima permitida entre o sumidouro e qualquer manancial ou fonte
de captação de água será de 30,0 m." Sua localização deverá ter fácil acesso.
" Não poderão comprometer a estabilidade de edificações adjacentes.
" Quando cilíndricos, deverão ter, no mínimo, 1,20 m de diâmetro e 2,00 m de
profundidade.
" O fundo deverá ficar, no mínimo, 1,50 m acima do lençol freático.
04.CRITÉRIOS DE PAGAMENTO MEDIÇÃO
A medição será feita por unidade (un), pronta, com tampa, reaterrada e interligada à fossa.
O pagamento será efetuado por preço unitário contratual e conforme medição aprovada pela Fiscalização.
ABNT NBR 7229
Fonte: Fundação Nacional de Saúde
DESCRIÇÃO
Projeto construção e operação de sistemas de tanques sépticos Manual de Saneamento